首页>装修设计>BETVLCTOR伟德在线最新网站 >设计案例>内容
33平俄罗斯小户型装修 超适合单身男士的公寓楼!
2017/07/10来源:伟德国际公司作者:网络
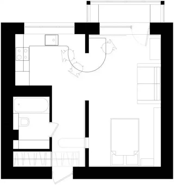
这是一个来自俄罗斯的一个案例,各个空间紧密相连,色调上是非常时尚和酷的,很适合单身的男士。最大的特色大概就是弧形的餐桌和工作台合一的设计了。平面布置图,卧室,客厅、餐厅、厨房,都没有分隔开,是一个开放式的空间!

入户玄关,做了一面黑板墙,虽然小编看不懂这些英文字母代表啥意思,但感觉很有趣样子。

L型的橱柜,这个位置的光线很好,白色的橱柜和黑色的墙面可以形成一个对比,更加显眼。

然后就是餐厅和工作台合一的弧形操作台,也兼具着隔断的作用。既有特色,功能性也强,小编觉得家里有条件的可以试试。

客厅,舍弃了电视,和卧室连在一起,当作书房来用吧,沙发背景墙很有意思,3D壁纸的。

书架上若隐若现的图案,是不是非常有感觉,诱惑力满分!

卧室很简单,衣服是在入户那里做了个衣帽间,所以卧室空间会大一些。文化砖的床头背景墙也很好看。

最后看看卫生间,风格完全突变的小清新卫生间,但是小编觉得挺好的。至少这个色彩的搭配非常喜欢。

紧致的墙面收纳柜,空间利用率超大,而且也进行了干湿分离,卫生间该有的功能都全了。

来源:环球家居设计
转载声明:本文内容及图片版权伟德betvlctor旧版传媒为杂志所有,未经正式书面授权不得以任何形式转载或使用










粤公网安备 44030302001606号